
GOTOWE DO ODBIORU
WRÓCIŁ JEDEN DOM Z POŁUDNIOWĄ EKSPOZYCJĄ!
DOJAZD AUTOBUSEM MPK WROCŁAWSKIM 908
Przedstawiamy naszą kolejną inwestycję na północy Wrocławia. 8 domów w zabudowie bliźniaczej. Wszystkie wyposażone w pompy ciepła. Oddane będą z pełnym zagospodarowaniem – ogrodzone, wybrukowane podjazdy i podejścia.
Inwestycja znajduje się przy drodze asfaltowej, pomiędzy domami willowymi, wolnostojącymi co zapewnia miłe poczucie prywatności na ogrodzie.
Wizualizacje



Komunikacja
Do Wrocławia można dojechać na kilka sposobów:
- autem do centrum około 20 minut (dzięki bliskości autostrady)
- autobus MPK WROCŁAWSKIE – zatrzymuje się około 600m od naszej inwestycji
- autobus podmiejski, który w 15 minut dojeżdża do Marino lub w 25 minut do Dworca Nadodrze
- bus gminny, który kursuje podobnie jak autobus podmiejski, ale jest znacznie wygodniejszy (auta to Mercedesy Sprintery)
Dodatkowo do pobliskiej szkoły dzieci zabiera autobus szkolny, który również po zajęciach odwozi uczniów na przystanek przy osiedlu.
Do szkoły też można się dostać pieszo w ciągu 5 minut spacerem. W planach jest wykonanie przez gminę w najbliższym czasie drogi pieszo-rowerowej od inwestycji do Szkoły.
Układ osiedla


Dostępne domy
Rozpoczynamy sprzedaż, w chwili obecnej mamy 6 z 8 bliźniaków na sprzedaż, jeszcze dla dwóch Klientów mamy cenę 649.000 PLN, która wzrośnie po sprzedaży kolejnych dwóch budynków lub za chwilę wycenimy wszystkie w zależności od usytuowania na działce i wielkości ogrodów.
A M1 – 619.000 PLN PROMOCJA – POPRZEDNIA CENA 649.000 PLN REZERWACJA
A M2 – 649.000 PLN SPRZEDANY
B M1 – 649.000 PLN
B M2 – 649.000 PLN SPRZEDANY
C M1 – 649.000 PLN
C M2 – 649.000 PLN SPRZEDANY
D M1 – 649.000 PLN – SPRZEDANY
D M2 – 699.000 PLN – WRÓCIŁ DO SPRZEDAŻY (SKRAJNY)
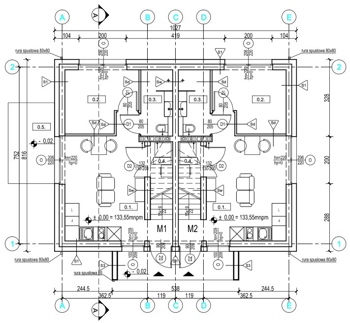
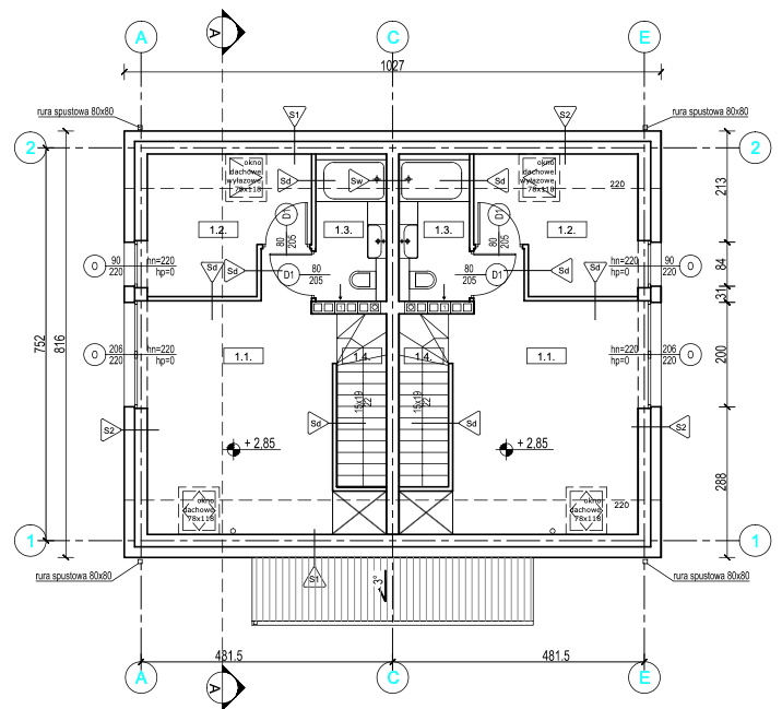
Rzuty – uwaga możliwość zmiany i wykonania dużego salonu na dole oraz 3 małych pokoi na górze.




Zdjęcia z budowy





Lokalizacja
Kryniczno, ul. Spacerowa 56
Pinezka google: https://maps.app.goo.gl/nsrLgV5XrGHDmJiT8
KONTAKT: 536-58-58-58