
Przedstawiamy naszą kolejną inwestycję na północy Wrocławia. 2 domy w zabudowie bliźniaczej. Wszystkie wyposażone w piece gazowe Viessmann, żaluzje zewnętrzne, automatyczne bramy garażowe. Gotowe do odbioru już niebawem – oddane będą z pełnym zagospodarowaniem – ogrodzone (poza bramą), wybrukowane podjazdy i podejścia.
Inwestycja znajduje się przy ślepej drodze wewnętrznej, do której dojeżdża się wygodną drogą asfaltową, pomiędzy domami willowymi, wolnostojącymi co zapewnia miłe poczucie prywatności na ogrodzie.
Wizualizacje




Komunikacja
Do Wrocławia można dojechać na kilka sposobów:
- autem do centrum około 20 minut (dzięki bliskości autostrady)
- autobus MPK WROCŁAWSKIE – zatrzymuje się około 600m od naszej inwestycji
- autobus podmiejski, który w 15 minut dojeżdża do Marino lub w 25 minut do Dworca Nadodrze
- bus gminny, który kursuje podobnie jak autobus podmiejski, ale jest znacznie wygodniejszy (auta to Mercedesy Sprintery)
Dodatkowo do pobliskiej szkoły dzieci zabiera autobus szkolny, który również po zajęciach odwozi uczniów na przystanek przy osiedlu.
Do szkoły też można się dostać pieszo w ciągu 5 minut spacerem. W planach jest wykonanie przez gminę w najbliższym czasie drogi pieszo-rowerowej od inwestycji do Szkoły.
Dostępne domy
Strona lewa (południowo zachodni salon) – 1.250.000 PLN Rezerwacja
Strona prawa (północno zachodni salon) – 1.220.000 PLN Rezerwacja
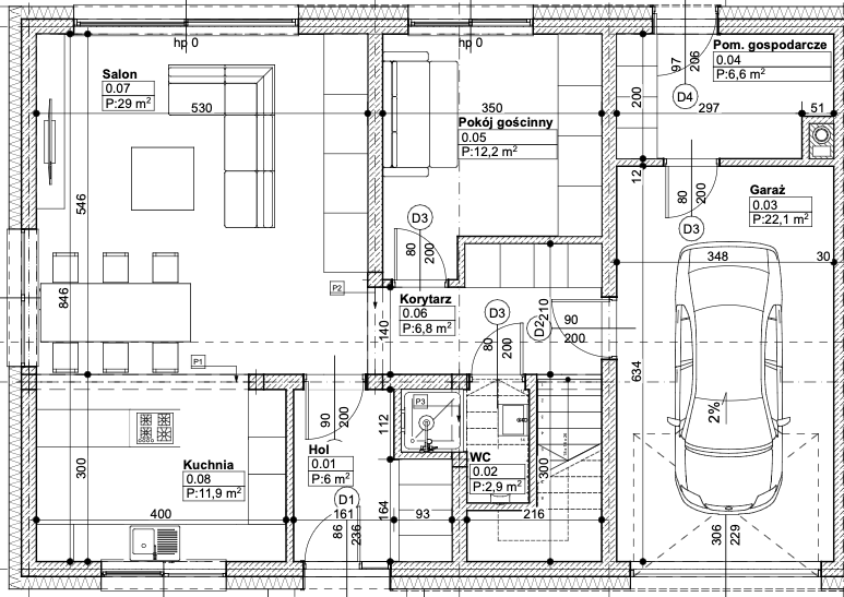
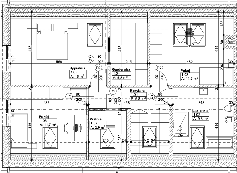
Rzuty




Standard wykonania
– indywidualny projekt
– pustaki ceramiczne – te oddzialające budynki w wersji akustycznej
– ocieplenie styropian szary 20cm
– płaska dachówka – roben bergamo
– okna 3 szybowe oknoplast
– okna połaciowe VELUX
– drzwi z bocznym doświetlem
– żaluzje Anwis SOLIDBOX we wszystkich oknach sterowane pilotem wraz z ustawianiem kąta nachylenia – system SOMFY
– brama garażowa HORMANN
– ocieplenie podłogi – styrobeton (wylewany 15cm)
– wylewka anhydrytowa
– ogrzewanie podłogowe łącznie z garażem
– piec gazowy kondensacyjny Viessmann wraz z dodatkowym 120l. zbiornikiem na ciepłą wodę
– rekuperacja Neovent Lux
– strych obity OSB
– tynki maszynowe twarde
– przygotowania GK pod podwieszenie lamp w pokojach na gorze
– przygotowane przyłącze w kotłowni pod zmiękczacz wody
– kostka brukowa SEMMELROCK PAVIMO
– ogrodzenie systemowe w kolorze antracyt
– szambo 10m3
Lokalizacja
Kryniczno, ul. Spacerowa 11
Pinezka google: https://maps.app.goo.gl/6K2BM3h3P5PeMH8N7
KONTAKT: 536-58-58-58